GP Graphics Buffer
Sun-4/150/260/280/360/370/380
501-1058

Power
- 2.1 Amps @ +5Vdc
- 10.5 Watts
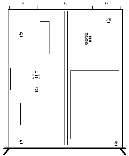
Jumper and Switch Settings
| JUMPER |
SETTING |
DESCRIPTION |
| J1 |
Out |
Ground test point |
| J2 |
Out |
Ground test point |
| J3 |
Out |
Manual reset test point |
| J4 (2-3) |
In |
Graphics buffer = 2MB |
| J5 |
In/Out* |
Refresh interval test point bit 0 |
| J6 |
In/Out* |
Refresh interval test point bit 1 |
| J7 |
In/Out* |
Refresh interval test point bit 2 |
| J8 |
In/Out* |
Refresh interval test point bit 2 |
| J9 |
Out |
Ground test point |
| J10 |
Out |
Ground test point |
*Hardwired
Notes
- The Sun-2/160 Power Supply requires RC Network, 540-1300-01,
(FCO 160-0002, Doc 807-0029).
Reference
- Hardware Installation Manual for the Sun-2/130 and Sun-2/160, 800-1144.
Last updated: December 2, 1996
|