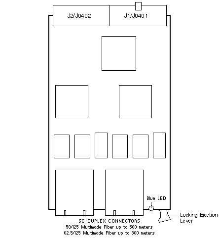
cPCI Dual FC Network Adapter
Sun Fire 3800 / 4800 / 4810 / 6800
Option 6748
| 375-0118 |
| 3.3/5V 64Bit 33MHz cPCI |

LC-SC Fibre Cables
| OPTION |
FRU PART # |
DESCRIPTION |
| X9721A |
537-1036 |
0.4 Meter LC-SC Fibre Channel Cable |
| X9722A |
537-1035 |
2 Meter LC-SC Fibre Channel Cable |
| X9723A |
537-1033 |
5 Meter LC-SC Fibre Channel Cable |
| X9724A |
537-1034 |
15 Meter LC-SC Fibre Channel Cable |
SC-SC Fibre Cables
| OPTION |
FRU PART # |
DESCRIPTION |
| X973A |
537-1004 |
2 Meter SC-SC Fibre Channel Cable |
| X978A |
537-1006 |
15 Meter SC-SC Fibre Channel Cable, 50/125 Multimode |
| X9715A |
537-1020 |
5 Meter SC-SC Fibre Channel Cable |
| X9720A |
130-4723 |
SC-SC Fibre Channel Cable Coupler |
Notes
- The minimum operating system is Solaris 8 4/01.
- Adapter <375-0118-03 is not compatible with the SF3800-SF6800.
References
-
Dual Fibre Channel Adapter Installation and User's Guide, 816-0241.
- Dual Fibre Channel Adapter Release Notes, 816-0242.
|